2025年10月13日 09時44分 更新
次回更新予定日:2025年10月14日 市川市新築戸建て対象物件の仲介手数料最大無料をはじめて12年☆ポータルサイト掲載中の物件、中古マンション・中古戸建・土地の購入も応援!詳しくはHPをご覧ください♪
株式会社 カナエ・アドバンス
仲介手数料20%OFF(投資用・オーナーチェンジ)物件情報
お急ぎの方はこちらまでお電話ください
047-314-1955
トップページへ
>
居住用物件一覧へ
> 物件情報
各種物件
間取一覧
写真一覧
地図一覧
地域一覧
この他にも、売主様等のご都合により、ホームページ上に記載できない物件が多数ございます。
希望条件登録をして頂ければ、ご紹介出来ます。
登録はこちらから ⇒
こちら
既に会員登録がお済の方はこちらから ⇒
クリック
物件番号
所在地
価格
バス
徒歩
土地面積
建物面積
間取
構造
築年月
引渡時期
詳細
画像
Bm10054
市川市行徳駅前2丁目
3,490万円
−
1分
67.48m
2
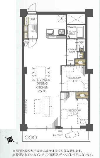
1SLDK
鉄骨鉄筋コンクリート造
S49/06
相談
市川市行徳駅前2丁目 中古マンション ファミリーコーポ南行商協ビル
雨にほとんど濡れずに駅まで行くことが出来ます!
■東西線「行徳」駅徒歩1分
■1、2階にはドンキホーテや飲食店があります
■近隣には商業施設や病院、教育施設も整い便利です
≪教育施設≫
新浜小学校徒歩5分、第七中学校徒歩8分、新浜幼稚園徒歩6分、行徳保育園徒歩7分
≪近隣情報≫
ドンキホーテ徒歩1分、マルエツ行徳駅前店徒歩1分、西友行徳店徒歩2分、セブンイレブン行徳駅前店徒歩2分、くすりの福太郎徒歩1分
メリットいっぱい♪希望条件(会員)登録がお済でない方はこちら
ページトップへ